Een aanlokkelijk voordeel van zelfbouw leek ons om meteen een volledig energetisch zelfvoorzienend huis te bouwen. Het bestemmingsplan ambieerde energieneutrale woningen. Wij hebben daarom begin 2017 als uitgangspunt ‘nul-op-de-meter’ meegegeven aan onze architect. Dus alle gebouw- en gebruiksgebonden energie duurzaam opgewekt. Vervolgens hebben we een installateur, Steven te Velde, geselecteerd op zijn ervaring hiermee. Peter van der Kleij begeleidde tijdens de bouw onze aannemer met thermografische onderzoeken en blowerdoortests.
Maatregelen
Tijdens het ontwerpproces zijn diverse scenario’s voor de energiehuishouding samengesteld en doorgerekend volgens de methodiek van de nZEB-tool. Uitkomst is een energiezuinig woningontwerp met als onderdelen:

- woningisolatie op het niveau van een passief huis. In het ontwerp is de thermische isolatie van de buitenschil uitgewerkt naar: rc-waarden gevel 6,75 m2K/W, dak 6,22 en bodem 4,5, en alle glas HR+++ (U-waarde 0,7 W/m2K), luchtdicht afgewerkt met Varioband. De toegepaste isolatiewaarden wijken om praktische redenen iets af: hoger bij de gevel (7) en dak (6,5), iets lager bij de vloer (4);
- laag temperatuursysteem voor vloerverwarming en koeling, gevoed met een NRGteq TNG5 bodemwarmtepomp. Voor het gesloten systeem zijn 2 bronnen geslagen van elk 85 meter diepte. Dit is aangevuld met een individueel per kamer CO2-vraaggestuurd balansventilatiesysteem (Daalderop Itho Qualityflow) met warmteterugwinning;
- duurzame energieopwekking met behulp van zonnepanelen. Vanwege het beperkte dakoppervlak viel de keuze op krachtige Sunpowerpanelen X22 370Wp met Solaredge omvormer en Power optimizers. Dit zorgt voor een onafhankelijke regeling per paneel, en is klaar voor accu-opslag. De X22-panelen zijn state of the art, met een omzettingsrendement van 22,7% van het zonlicht.
Dit leek een haalbare kaart, met als grootste hindernis de te verwachten investeringskosten. Wij hielden rekening met een wat langere terugverdientijd en een ‘onrendabele top’ van ca. 10K. Praktisch betekent het aardgasvrij, dus geen aansluitkosten, en koken met inductieplaat. Bovendien beloofde onze installateur een zeer comfortabel huis.
Gemeentelijke lippendienst energieneutraal
De technische mogelijkheden bleken gaandeweg het ontwerpproces binnen bereik. Echter tot onze verrassing stond de gemeente Arnhem ineens bij een buurwoning een extra (5e) verdieping toe, in afwijking van de maximale bouwhoogte in het bestemmingsplan en in de private bouwregels. Het argument is beoogde diversiteit in de bouwhoogten. Opmerkelijk, want dat staat nergens in het bestemmingsplan. Terwijl Arnhem in haar bestemmingsplan energieneutrale bouw juist wel als uitgangspunt noemt, waarvoor dakvlak met zon noodzakelijk is. Dat het dak van directe buren bij de -noord-zuid- geschakelde woningen grotendeels in de schaduw komen te liggen, vond de gemeente onbelangrijk. Haar nieuwe standpunt: dan neem je geen zonnepanelen of pas je je ontwerp aan en bouw je toch ook -een eengezinswoning- 5 verdiepingen hoog. Natuurlijk.
Daarmee werd onze investering in zonnepanelen ineens erg risicovol. Een kavel ten zuiden van onze woning was ten tijde van ons ontwerp nog niet verkocht. Meer dan een jaar later tijdens onze bouw was de situatie nog steeds onzeker. De gemeente verklaarde na een verzoek van ons de maximale bouwhoogte niet te willen handhaven. Wij hebben op een gegeven moment de knoop moeten doorhakken over de zonnepanelen. Geen ‘nul-op-de-meter’ meer, maar een strategie gericht op het behoud van energieneutraliteit in verschillende scenario’s, met minder rendement.
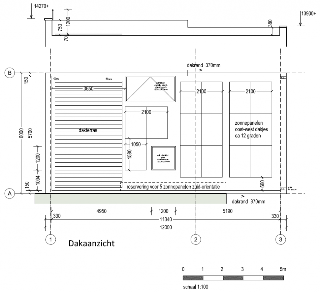
De functionele dakpuzzel
Het dak moet plaats gaan bieden aan zonnepanelen, een dakterras met dakluik en een daklicht. Door de onzekerheid over de zonnepanelen hebben we de inrichting van het dak pas tijdens de bouw definitief bepaald. Er zijn nu 15 zonnepanelen in oost-west dakjes gerealiseerd, voldoende voor energieneutraal. Bij de aanleg is vanwege dakdoorvoeren een paneel verlegd.
We hebben een reservering opgenomen voor 5 verticale panelen met een zuid-oriëntatie aan de noordzijde van het dakvlak, eventueel met 2 uit te breiden op het dakterras (op tekening de onderzijde). Deze situering zorgt echter voor een lagere opbrengst per paneel. Deze ruimte kunnen we indien nodig inzetten om enkele van de huidige panelen naartoe te verplaatsen. Mocht dat uiteindelijk niet nodig blijken, dan kunnen wij later alsnog extra panelen toevoegen.
Tussenstand
Na meer dan een jaar inregelen van de installaties, koerst het energieverbruik eind 2020 langzaam maar zeker naar het berekende niveau. Het ziet er naar uit dat we in 2021 een zodanig laag energieverbruik hebben, dat we ‘nul-op-de-meter’ zouden kunnen gaan halen. Mits we de extra panelen plaatsen en onze woningschil eindelijk volledig is geïsoleerd en afgewerkt.
Ons geluk: de inmiddels gebouwde zuidelijke woning voldoet gewoon aan de maximale bouwhoogte.
