De extremere weersomstandigheden van de afgelopen jaren hadden invloed op ons groendak met waterberging. Wij besloten daarom onze kavel nog beter bestendig te maken tegen het veranderende weer. Een extra groendak, in de vorm van een cascade, bood de oplossing.
Klimaatadaptatie in de praktijk
Onze maatregelen voor waterberging (zie artikel over groendak) bij onze woning bleken sinds de ingebruikname effectief, maar met een te kleine impact. Alleen het hemelwater dat op het groendak zelf valt komt in de buffer. Dat omvat circa een kwart van ons kaveloppervlak (exclusief lokale bodeminfiltratie).
De veranderende weersomstandigheden bleken bovendien gevolgen te hebben voor het goed functioneren van het groendak met waterberging:
- extremere buien: veel neerslag in korte tijd veroorzaakte dat de buffer snel vol raakte en de overstort in werking ging treden: het overtollige water werd alsnog naar de straat afgevoerd. Het hemelwater dat op ons huis zelf viel werd allemaal via het balkon aan de achterzijde afgevoerd naar de straat;
- extremere droogte: langdurige periodes van droogte zorgden ervoor dat de waterbuffer helemaal droog viel. Om afsterven van planten te voorkomen besproeiden we geregeld het groendak. Alsof het een uit de kluiten gewassen plantenbak is. Maar met kraanwater onze waterbuffer vullen, dat was niet helemaal wat wij voor ogen hadden.
De buffercapaciteit van het groendak op de garage bleef zodoende in de praktijk teveel onbenut of juist overbelast. Tegelijkertijd stroomde het hemelwater van het woningdak rechtstreeks via regenpijpen naar het balkon en vervolgens naar het straatniveau. Bij piekbuien kwam ons balkon soms blank te staan.
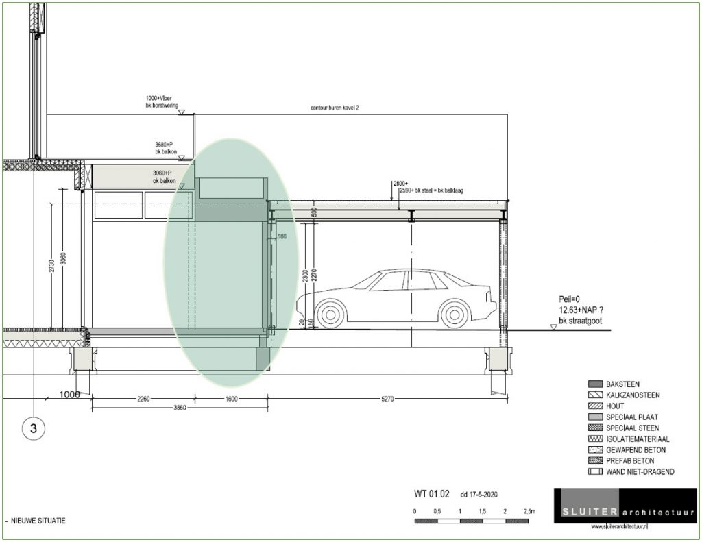
Cascade
Door het hoogteverschil tussen het balkon en het lager gesitueerde groendak te gebruiken, zagen we een cascade ontstaan: water dat trapsgewijs van een hoogte naar beneden valt. Tussen het balkon, waar het hemelwater van de woning zich verzameld, en het bestaande groendak hebben wij daarom een tweede groendak met waterbuffer geplaatst. Deze groenbak bevat een waterbuffer (1,4m breed x 2,15m lang x 0,5m hoog = 1.505 mm/m2) bestaande uit een drainagesysteem, een waterreservoirplaat en een substraatlaag, met erop een forse groene heg.
Er is een tweede overstort gemaakt vanaf het balkon naar deze groenbak en 2 overstorten van de groenbak (op drain en maaiveldniveau) naar het bestaande groendak. Hemelwater van het woningdak en balkon (totaal ca. 90 m2) zal via de cascade terecht gaan komen in de nieuwe waterbuffer en in de bestaande waterbuffer. De buffercapaciteit is met 50% vergroot tot circa 4.100 mm/m2. Ons streven is nagenoeg al ons hemelwater op eigen terrein vast te gaan houden ter voorkoming van wateroverlast en droogte. Dat kan tot piekbuien van circa 30 mm.
Omdat onze woning in het stadscentrum ligt, met de hoogste urgentie om opwarming tegen te gaan, stelde de gemeente een subsidie beschikbaar. Daarmee hebben wij de extra zware fundering voor de groenbak kunnen bekostigen.
Resultaat
Met de nieuwe groenbak en cascade loopt er vanaf onze kavel beduidend minder hemelwater richting de straat. Ook zal het balkon niet meer blank staan, en zullen wij het groendak minder hoeven te besproeien. De woning is daarmee extra bestand tegen extreem weer.